Kranen Makelaardij

NVM

Vesperstraat 49

5731 GR  Mierlo

€ 525.000,- Kosten koper
Soort object:Eengezinswoning
Type woning:Twee-onder-een-kapwoning
Bouwjaar:1966
Woonoppervlakte:128 m²
Aantal kamers:6
Verkocht onder voorbehoud

Korte omschrijving

Vesperstraat 49 te Mierlo

VERRASSEND RUIME, UITGEBOUWDE, MODERNE TWEE-ONDER-EEN KAP WONING MET GARAGE, ZONNEPANELEN EN ACHTERTUIN MET VEEL PRIVACY OP EEN RUIM PERCEEL (± 247 M²).

BEGANE GROND:
Ruime hal met pvc-vloer, praktische trapkast en meterkast.

Moderne, luxe deels betegelde toiletruimte met hangend toilet, fonteintje en weggewerkt systeem voor wc-rollen.

Ruime woonkamer, ± 48 m² ...

Volledige omschrijving bekijken

Foto's


Kenmerken

Soort woning:Eengezinswoning
Perceeloppervlakte:247 m²
Bouwjaar:1966
Aantal kamers:6 kamers (5 slaapkamers)
Woonoppervlakte:128 m²
Inhoud:587 m³
Meer kenmerken bekijken

Volledige omschrijving

Vesperstraat 49 te Mierlo

VERRASSEND RUIME, UITGEBOUWDE, MODERNE TWEE-ONDER-EEN KAP WONING MET GARAGE, ZONNEPANELEN EN ACHTERTUIN MET VEEL PRIVACY OP EEN RUIM PERCEEL (± 247 M²).

BEGANE GROND:
Ruime hal met pvc-vloer, praktische trapkast en meterkast.

Moderne, luxe deels betegelde toiletruimte met hangend toilet, fonteintje en weggewerkt systeem voor wc-rollen.

Ruime woonkamer, ± 48 m² (incl. keuken), voorzien van pvc-vloer, houthaard, strakke stucwerk wanden en -plafond met inbouwverlichting en openslaande deuren met plisse hordeur richting de fijne tuin.

Moderne, open keuken voorzien van pvc-vloer, kookeiland met barretje, diverse onder- en bovenkasten en inbouwapparatuur, t.w.: breed 6- pits gasfornuis met oven, afzuigkap, vaatwasser en boiler.

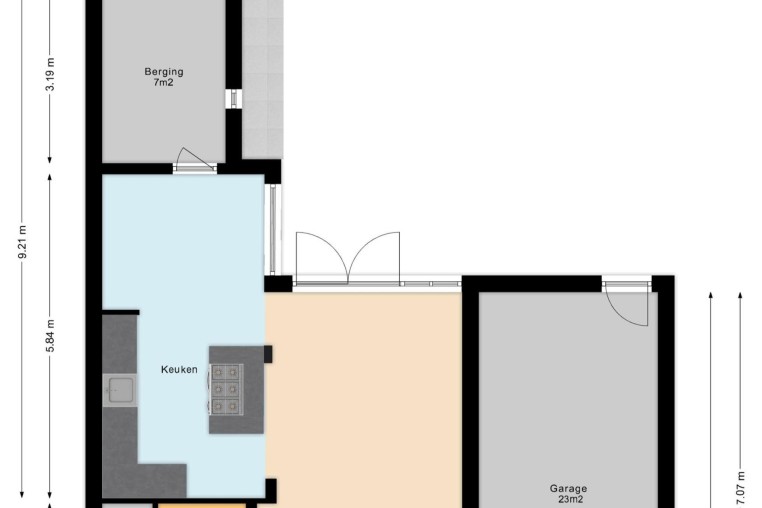
Praktische berging, ± 7 m², bereikbaar vanuit de keuken voorzien van pvc-vloer..

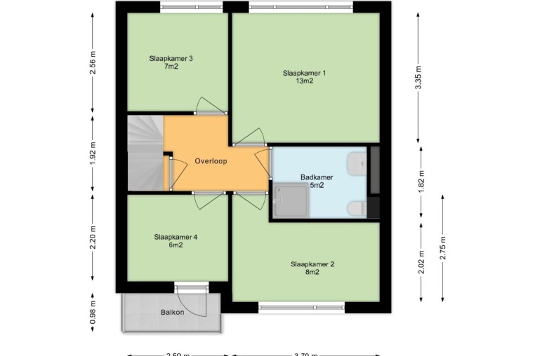
1E VERDIEPING:
Overloop met vloerbedekking.

Slaapkamer, ± 13 m², met vloerbedekking.
Slaapkamer, ± 8 m², met vloerbedekking.
Slaapkamer, ± 7 m², met vloerbedekking.
Slaapkamer, ± 6 m², met vloerbedekking en deur naar balkon.

In 2021 vernieuwde, moderne, luxe tot plafond betegelde badkamer voorzien van een houtlook tegelvloer, mechanische ventilatie, inloopdouche, badmeubel met wastafel, 2e toilet (Sanibroyeur) en design radiator.

2E VERDIEPING:
Ruime overloop voorzien van pvc-vloer.

Slaapkamer, ± 12 m², met vloerbedekking, aansluiting wasapparatuur en opstelling Combi-ketel (ATAG, ± 2023).

TUIN:
Royale voortuin
Oprit naar ruime garage, ± 23 m², met keukenblok, tegelvloer, elektrisch bedienbare roldeur en deur naar achtertuin.

Overkapping (2022) voorzien van een bartafel met 6 barkrukken en beamerdoek.

BIJZONDERHEDEN:
* Goede isolatievoorzieningen t.w. dak- en spouwmuurisolatie. De woning is grotendeels voorzien van HR++ beglazing
(behoudens de 4 dakramen op de 2e verdieping).
* Krachtstroom voor inductie koken aanwezig onder het kookeiland.
* Luxe keukeninrichting en sanitaire voorzieningen.
* Ruime garage met vele gebruiksmogelijkheden.
* Energielabel: C.
* De woning is voorzien van 6 zonnepanelen.
* Bouwjaar: ± 1966.
* Woonoppervlakte: ± 128 m².
* Inhoud woning: ± 587 m³.
* Perceeloppervlakte: ± 247 m².
* Gunstig gelegen t.o.v. winkels (centrum), scholen, natuurgebied, sportaccommodaties en uitvalswegen.

ALLEEN EEN BEZICHTIGING KAN U EEN JUISTE INDRUK GEVEN VAN DE RUIMTE EN MOGELIJKHEDEN WELKE DIT OBJECT TE BIEDEN HEEFT.

Overdracht

Status:Verkocht onder voorbehoud
Koopsom:€ 525.000,- Kosten koper

Bouwvorm

Soort object:Eengezinswoning
Soort woning:Twee-onder-een-kapwoning
Bouwjaar:1966
Bouwvorm:Bestaande bouw
Ligging:In woonwijk

Indeling

Woonoppervlakte:128 m²
Inhoud:587 m³
Aantal kamers:6
Aantal slaapkamers:5

Energie

Warmwater:CV-ketel

Buitenruimte

Perceeloppervlakte:247 m²
Tuin:Achtertuin, Voortuin
Hoofdtuin:Achtertuin
Oppervlakte hoofdtuin:96 m²
Ligging hoofdtuin:Noord
Achterom:Ja
Kwaliteit tuin:Normaal

Bergruimte

Schuur / Berging:Aangebouwd steen

Parkeergelegenheid

Parkeergelegenheid:Aangebouwd steen

Dak

Soort dak:Zadeldak

Overig

Permanente bewoning:Ja
Onderhoud binnen:Goed
Onderhoud buiten:Goed
Huidig gebruik:Woonruimte
Huidige bestemming:Woonruimte

Voorzieningen

Mechanische ventilatie:Ja
Buitenzonwering:Ja
Dakraam:Ja
Zonnepanelen:Ja
Natuurlijke ventilatie:Ja

Foto's

Klik op de foto voor een vergroting.

Kaart

De locatie van de woning op de onderstaande kaart is bij benadering.

Reageer op deze woning

Type bezoeker: *
Aanhef: *
en : *
Soort bericht: *


Website door Whirlwind Internet
  • Funda
  • VastgoedCert
  • NWWI