Kranen Makelaardij

NVM

van der Puttstraat 18

5666 TJ  Geldrop

€ 449.000,- Kosten koper
Soort object:Eengezinswoning
Type woning:Hoekwoning
Bouwjaar:1949
Woonoppervlakte:129 m²
Aantal kamers:4
Onder bod

Korte omschrijving

van der Puttstraat 18 te Geldrop.

VERRASSEND RUIME, UITGEBOUWDE HOEKWONING MET GARAGE, MULTIFUNCTIONELE RUIMTE, BERGINGEN EN ACHTERTUIN MET VEEL PRIVACY OP EEN ROYAAL PERCEEL (± 312 M²).

BEGANE GROND:
Hal met tegelvoer en meterkast.
Nette, tot plafond betegelde toiletruimte met wandcloset.

Royale, uitgebouwde living, (± 54 m² incl. keuken) voorzien van tegelvloer en strakke stucwerk wanden ...

Volledige omschrijving bekijken

Foto's


Kenmerken

Soort woning:Eengezinswoning
Perceeloppervlakte:312 m²
Bouwjaar:1949
Aantal kamers:4 kamers (3 slaapkamers)
Woonoppervlakte:129 m²
Inhoud:779 m³
Meer kenmerken bekijken

Volledige omschrijving

van der Puttstraat 18 te Geldrop.

VERRASSEND RUIME, UITGEBOUWDE HOEKWONING MET GARAGE, MULTIFUNCTIONELE RUIMTE, BERGINGEN EN ACHTERTUIN MET VEEL PRIVACY OP EEN ROYAAL PERCEEL (± 312 M²).

BEGANE GROND:
Hal met tegelvoer en meterkast.
Nette, tot plafond betegelde toiletruimte met wandcloset.

Royale, uitgebouwde living, (± 54 m² incl. keuken) voorzien van tegelvloer en strakke stucwerk wanden en -plafond. Prettig veel lichtinval door grote raampartij.

Semi-open keuken met inrichting in hoekopstelling, diverse onder- en bovenkasten en inbouwapparatuur, t.w.: inductiekookplaat, afzuigkap, oven, vaatwasser en koelkast. De keuken is tevens voorzien van een eetbar.

Praktische bijkeuken met opstelling combi-ketel (Nefit, ± 2014) en aansluiting wasapparatuur. Vanuit de bijkeuken bereikbaar portaal met deur naar de tuin en de oprit.

1E VERDIEPING:
Overloop met houten vloerdelen.

Slaapkamer, ± 11 m², met houten vloerdelen en dakkapel.
Slaapkamer, ± 11 m², met houten vloerdelen, inbouwkast en dakkapel.
Slaapkamer, ± 8 m², met houten vloerdelen, inbouwkast en dakkapel.

Moderne, betegelde badkamer met douche, badmeubel met 2 wastafels en 2e toilet (Sanibroyeur).

2E VERDIEPING:
Bereikbaar middels vlizo-trap, deels begaanbare bergzolder.

TUIN:
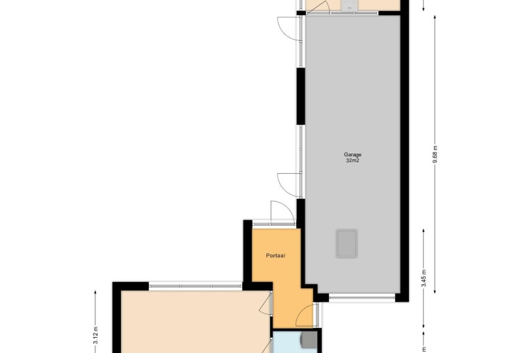
Voortuin met oprit naar ruime garage (± 32 m²) met doorgang naar portaal met toegang tot multifunctionele ruimte, ± 18 m², voorzien van tegelvloer en lichtkoepel.

Achtertuin met terrassen en borders, diverse ruime bergingen van respectievelijk 21 m², 17 m² en 7 m².

BIJZONDERHEDEN:
* Een object met vele mogelijkheden.
* Het object is deels voorzien van isolerende beglazing.
* Multifunctionele atelier-/hobbyruimte.
* Ruime garage/berging.
* Woonoppervlakte: ± 129 m².
* Inhoud woning: ± 779 m³.
* Perceeloppervlakte maar liefst: ± 312 m².
* Bouwjaar: ± 1949.

ALLEEN EEN BEZICHTIGING KAN U EEN JUISTE INDRUK GEVEN VAN DE RUIMTE EN MOGELIJKHEDEN WELKE DIT OBJECT TE BIEDEN HEEFT.

Overdracht

Status:Onder bod
Koopsom:€ 449.000,- Kosten koper

Bouwvorm

Soort object:Eengezinswoning
Soort woning:Hoekwoning
Bouwjaar:1949
Bouwvorm:Bestaande bouw
Ligging:Aan rustige weg, In woonwijk

Indeling

Woonoppervlakte:129 m²
Inhoud:779 m³
Aantal kamers:4
Aantal slaapkamers:3

Energie

Warmwater:CV-ketel

Buitenruimte

Perceeloppervlakte:312 m²
Tuin:Achtertuin, Voortuin
Hoofdtuin:Achtertuin
Oppervlakte hoofdtuin:66 m²
Ligging hoofdtuin:Oos
Achterom:Nee
Kwaliteit tuin:Normaal

Bergruimte

Schuur / Berging:Aangebouwd steen

Parkeergelegenheid

Parkeergelegenheid:Aangebouwd steen

Dak

Soort dak:Zadeldak

Overig

Permanente bewoning:Ja
Onderhoud binnen:Goed
Onderhoud buiten:Goed
Huidig gebruik:Woonruimte
Huidige bestemming:Woonruimte

Voorzieningen

Buitenzonwering:Ja
Glasvezelkabel:Ja
Natuurlijke ventilatie:Ja

Foto's

Klik op de foto voor een vergroting.

Kaart

De locatie van de woning op de onderstaande kaart is bij benadering.

Reageer op deze woning

Type bezoeker: *
Aanhef: *
en : *
Soort bericht: *


Website door Whirlwind Internet
  • Funda
  • VastgoedCert
  • NWWI