Kranen Makelaardij

NVM

Sporkehout 38

5667 JG  Geldrop

€ 999.000,- Kosten koper
Soort object:Villa
Type woning:Vrijstaande woning
Bouwjaar:1976
Woonoppervlakte:168 m²
Aantal kamers:6
Beschikbaar

Korte omschrijving

Sporkehout 38 te Geldrop.

OOIT AL LANDELIJK EN OP EEN BIJZONDER FRAAIE LOCATIE WILLEN WONEN? DIT IS UW KANS!

OP EEN BIJZONDER FRAAIE LOCATIE IN EEN GROENE BOSRIJKE OMGEVING AAN DE RAND VAN GELDROP AAN EEN BREDE STRAAT GELEGEN VRIJSTAANDE VILLA OP EEN PERCEEL VAN MAAR LIEFST 992 M2. LANDELIJK WONEN MET TOCH ALLE VOORZIENINGEN IN DE DIRECTE OMGEVING.

BEGANE GROND:
Overdekte entree; royale hal ...

Volledige omschrijving bekijken

Foto's


Kenmerken

Soort woning:Villa
Perceeloppervlakte:992 m²
Bouwjaar:1976
Aantal kamers:6 kamers (4 slaapkamers)
Woonoppervlakte:168 m²
Inhoud:807 m³
Meer kenmerken bekijken

Volledige omschrijving

Sporkehout 38 te Geldrop.

OOIT AL LANDELIJK EN OP EEN BIJZONDER FRAAIE LOCATIE WILLEN WONEN? DIT IS UW KANS!

OP EEN BIJZONDER FRAAIE LOCATIE IN EEN GROENE BOSRIJKE OMGEVING AAN DE RAND VAN GELDROP AAN EEN BREDE STRAAT GELEGEN VRIJSTAANDE VILLA OP EEN PERCEEL VAN MAAR LIEFST 992 M2. LANDELIJK WONEN MET TOCH ALLE VOORZIENINGEN IN DE DIRECTE OMGEVING.

BEGANE GROND:
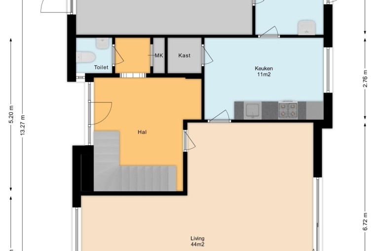
Overdekte entree; royale hal met tegelvloer voorzien van fraaie houten trap naar 1e verdieping en vide, garderobenis en uitgebreide vernieuwde meterkast.

Deels betegelde toiletruimte met fonteintje.

Sfeervolle royale L-vormige living, ± 44 m², met tegelvloer, open haard, prettig veel lichtinval door grote raampartijen en een schuifpui naar de diepe achtertuin. De voorzijde van de woonkamer en het grote zijraam zijn voorzien van zonneluifels.

Dichte keuken, ± 11 m², voorzien van tegelvoer, nette keukeninrichting met diverse onder- en bovenkasten en inbouwapparatuur, t.w.: 4-pits gaskookplaat, vlakschermafzuigkap, oven, koelkast en vaatwasser. Praktische provisiekast.

Vanuit de keuken is de bijkeuken bereikbaar. Deze is voorzien van een tegelvloer, uitstortgootsteen, aansluiting voor wasapparatuur en deur naar achtertuin.

De inpandige garage, ± 21 m², is bereikbaar vanuit de bijkeuken, heeft openslaande deuren en is voorzien van elektra, water en verwarming.

1E VERDIEPING:
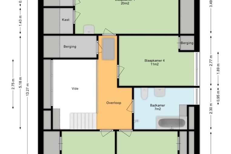
Ruime vide, overloop voorzien van vloerbedekking, met toegang tot 4 slaapkamers, badkamer, berging en luik met vlizotrap naar 2e verdieping.

Slaapkamer, ± 20 m², met vloerbedekking, deur naar balkon, 3 inbouwkasten en vaste wastafel.
Slaapkamer, ± 15 m², met linoleum en inbouwkast onder kapschuinte.
Slaapkamer, ± 13 m², met linoleum en inbouwkast onder kapschuinte.
Slaapkamer, ± 11 m², met zeil en inbouwkast onder kapschuinte.

Nette badkamer, ± 7 m², voorzien van ligbad, douche, vaste wastafel en tweede toilet.

2E VERDIEPING:
Bereikbaar middels vlizotrap, geheel begaanbare bergzolder met stahoogte en met opstelling combi-ketel (Remeha 2009).

TUIN:
Riante tuin rondom de woning.
De voortuin met oprit is geschikt voor meerdere auto's.
Royale veel privacy biedende achtertuin, met terras, kas, gazon en volwassen beplanting.
Een oase van rust, ruimte en privacy met een adembenemend vrij uitzicht over landerijen en bos.

BIJZONDERHEDEN:
* Isolatievoorzieningen t.w.: muurisolatie, dakisolatie en gedeeltelijk vloerisolatie. De gehele woning is voorzien van
isolerende beglazing.
* De woning beschikt over 4 ruime slaapkamers.
* Ruime inpandige garage.
* Fraai vrij uitzicht in de achtertuin.
* Woonoppervlakte: ± 168 m².
* Inhoud: ± 807 m³.
* Perceeloppervlakte ± 992 m².
* Bouwjaar ± 1976.
* Energielabel: C.
* Op fietsafstand van Eindhoven.
* Gelegen nabij natuurgebied, scholen, centrum van Geldrop en Anna Ziekenhuis.
* Gunstig gelegen t.o.v. de uitvalswegen: binnen no time bent u in Eindhoven centrum en op slechts enkele minuten
van de snelweg (A67, ASML, High Tech Campus).
* Geldrop kenmerkt zich door de vele voorzieningen, zoals diverse scholen waaronder een grote middelbare school
op loopafstand), een ziekenhuis, NS station, goede winkelvoorzieningen en een heerlijk wandel- en fietsgebied (om
de hoek). Deze villawijk is ruim van opzet en kenmerkt zich door rust, ruimte en privacy!

GELEGEN OP EEN TOPLOCATIE IN EEN GROENE BOSRIJKE VILLAWIJK. EEN UNIEKE KANS OM TE WONEN IN EEN RUSTIGE, GROENE OMGEVING EN TOCH ALLE VOORZIENINGEN DICHTBIJ. EEN BEZICHTIGING ZEKER WAARD.

Overdracht

Status:Beschikbaar
Koopsom:€ 999.000,- Kosten koper

Bouwvorm

Soort object:Villa
Soort woning:Vrijstaande woning
Bouwjaar:1976
Bouwvorm:Bestaande bouw
Ligging:Aan bosrand, Aan rustige weg, In woonwijk, Vrij uitzicht, In Bosrijke omgeving

Indeling

Woonoppervlakte:168 m²
Inhoud:807 m³
Aantal kamers:6
Aantal slaapkamers:4

Energie

Warmwater:CV-ketel

Buitenruimte

Perceeloppervlakte:992 m²
Tuin:Tuin rondom
Hoofdtuin:Tuin rondom
Oppervlakte hoofdtuin:
Achterom:Nee
Kwaliteit tuin:Verzorgd

Bergruimte

Parkeergelegenheid

Parkeergelegenheid:Inpandig

Dak

Soort dak:Zadeldak

Overig

Permanente bewoning:Ja
Onderhoud binnen:Goed
Onderhoud buiten:Redelijk_tot Goed
Huidig gebruik:Woonruimte
Huidige bestemming:Woonruimte

Voorzieningen

Buitenzonwering:Ja
ROOKKANAAL:Ja
Schuifpui:Ja
Glasvezelkabel:Ja
Natuurlijke ventilatie:Ja

Foto's

Klik op de foto voor een vergroting.

Kaart

De locatie van de woning op de onderstaande kaart is bij benadering.

Reageer op deze woning

Type bezoeker: *
Aanhef: *
en : *
Soort bericht: *


Website door Whirlwind Internet
  • Funda
  • VastgoedCert
  • NWWI