Kranen Makelaardij

NVM

Sneeuwgorshof 14

5672 EV  Nuenen

€ 399.000,- Kosten koper
Soort object:Eengezinswoning
Type woning:Tussenwoning
Bouwjaar:1971
Woonoppervlakte:127 m²
Aantal kamers:5
Verkocht onder voorbehoud

Korte omschrijving

Sneeuwgorshof 14 te Nuenen

RUIME TUSSENWONING MET 4 SLAAPKAMERS EN FIJNE TUIN, BERGING EN ACHTEROM GELEGEN IN DE GEWILDE WIJK NUENEN ZUID.

BEGANE GROND:
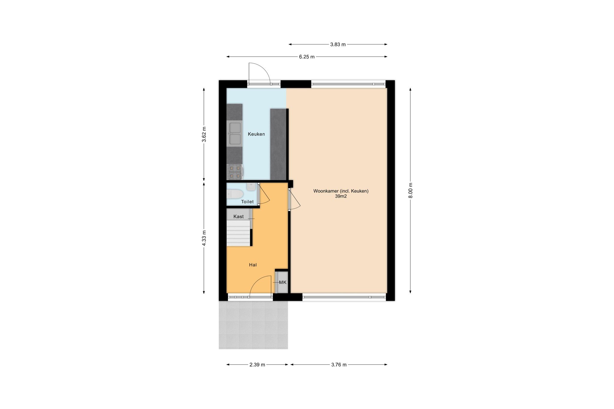
Hal voorzien van tegelvloer, meterkast, trapkast en trapopgang naar 1e verdieping.

Deels betegelde toiletruimte met toilet en fonteintje.

Ruime woonkamer, ± 39 m² (incl. keuken), met deur naar de fijne tuin. De woonkamer beschikt over 2 ...

Volledige omschrijving bekijken

Foto's


Kenmerken

Soort woning:Eengezinswoning
Perceeloppervlakte:166 m²
Bouwjaar:1971
Aantal kamers:5 kamers (4 slaapkamers)
Woonoppervlakte:127 m²
Inhoud:450 m³
Meer kenmerken bekijken

Volledige omschrijving

Sneeuwgorshof 14 te Nuenen

RUIME TUSSENWONING MET 4 SLAAPKAMERS EN FIJNE TUIN, BERGING EN ACHTEROM GELEGEN IN DE GEWILDE WIJK NUENEN ZUID.

BEGANE GROND:
Hal voorzien van tegelvloer, meterkast, trapkast en trapopgang naar 1e verdieping.

Deels betegelde toiletruimte met toilet en fonteintje.

Ruime woonkamer, ± 39 m² (incl. keuken), met deur naar de fijne tuin. De woonkamer beschikt over 2 grote ramen aan voor- en achterzijden, waardoor veel lichtinval.

Eenvoudige open keuken voorzien van barretje, diverse onder- en bovenkasten, dubbele spoelbak en afzuigkap.

1E VERDIEPING:
Overloop met vloerbedekking.

Slaapkamer, ± 18 m², met vloerbedekking en inbouwkast.
Slaapkamer, ± 12 m², met vloerbedekking, inbouwkast en vaste wastafel.
Slaapkamer, ± 9 m², met vloerbedekking.

Gedeeltelijk betegelde badkamer, ± 5 m², met ligbad, toilet, vaste wastafel en aansluitingen wasapparatuur.

2E VERDIEPING:
Bereikbaar middels vaste trap; ruime voorzolder met vloerbedekking, opsteling combi-ketel (Intergas, ± 2024) en bergruimte.

Slaapkamer, ± 17 m², met vloerbedekking, dakraam, bergruimte en vaste wastafel.

TUIN:
Nette voortuin.
De achtertuin is voorzien van een terras, gazon, berging en poort naar achterom.

BIJZONDERHEDEN:
* De woning is voorzien van dakisolatie.
* Begane grond is voorzien van isolerende beglazing.
* De woning beschikt over 4 fijne slaapkamers.
* Energielabel: C.
* Recente combi-ketel (Intergas, ± 2024)
* Woonoppervlakte: ± 127 m².
* Inhoud woning: ± 450 m³.
* Perceeloppervlakte: ± 166 m².
* Bouwjaar: ± 1971.
* Koper dient rekening te houden met onderhouds- en moderniseringskosten.
* In de koopakte wordt een niet-zelfbewonings clausule opgenomen.

EEN WONING MET MOGELIJKHEDEN!
WELKE KOPER ZIET HIER DE KANS OM VAN DIT OBJECT WEER EEN FRAAIE MODERNE TUSSENWONING TE MAKEN?

ALLEEN EEN BEZICHTIGING KAN U HIERVAN EEN JUISTE INDRUK GEVEN!!!

Overdracht

Status:Verkocht onder voorbehoud
Koopsom:€ 399.000,- Kosten koper

Bouwvorm

Soort object:Eengezinswoning
Soort woning:Tussenwoning
Bouwjaar:1971
Bouwvorm:Bestaande bouw
Ligging:Aan rustige weg, In woonwijk

Indeling

Woonoppervlakte:127 m²
Inhoud:450 m³
Aantal kamers:5
Aantal slaapkamers:4

Energie

Warmwater:CV-ketel

Buitenruimte

Perceeloppervlakte:166 m²
Tuin:Achtertuin, Voortuin
Hoofdtuin:Achtertuin
Oppervlakte hoofdtuin:63 m²
Ligging hoofdtuin:West
Achterom:Ja
Kwaliteit tuin:Normaal

Bergruimte

Schuur / Berging:Vrijstaand steen

Parkeergelegenheid

Parkeergelegenheid:Geen garage

Dak

Soort dak:Zadeldak

Overig

Permanente bewoning:Ja
Onderhoud binnen:Redelijk
Onderhoud buiten:Redelijk
Huidig gebruik:Woonruimte
Huidige bestemming:Woonruimte

Voorzieningen

Dakraam:Ja
Natuurlijke ventilatie:Ja

Foto's

Klik op de foto voor een vergroting.

Kaart

De locatie van de woning op de onderstaande kaart is bij benadering.

Reageer op deze woning

Type bezoeker: *
Aanhef: *
en : *
Soort bericht: *


Website door Whirlwind Internet
  • Funda
  • VastgoedCert
  • NWWI