Kranen Makelaardij

NVM

Roland Larijstraat 5

5591 CX  Heeze

€ 698.000,- Kosten koper
Soort object:Eengezinswoning
Type woning:Geschakelde woning
Bouwjaar:2008
Woonoppervlakte:163 m²
Aantal kamers:5
Verkocht onder voorbehoud

Korte omschrijving

Roland Larijstraat 5 te Heeze.

OP UITSTEKENDE WOONSTAND GELEGEN, KEURIG ONDERHOUDEN, INSTAPKLARE EN ROYAAL UITGEBOUWDE GESCHAKELD VRIJSTAANDE WONING MET GARAGE EN 18 ZONNEPANELEN. FIJNE LIGGING AAN DOODLOPENDE STRAAT IN GEWILDE WOONOMGEVING "ENGELSE TUIN", NABIJ HET CENTRUM EN UITVALSWEGEN.

BEGANE GROND:
Overdekte entree, hal voorzien van tegelvloer met vloerverwarming, meterkast, inbouwkast ...

Volledige omschrijving bekijken

Foto's


Kenmerken

Soort woning:Eengezinswoning
Perceeloppervlakte:294 m²
Bouwjaar:2008
Aantal kamers:5 kamers (4 slaapkamers)
Woonoppervlakte:163 m²
Inhoud:673 m³
Meer kenmerken bekijken

Volledige omschrijving

Roland Larijstraat 5 te Heeze.

OP UITSTEKENDE WOONSTAND GELEGEN, KEURIG ONDERHOUDEN, INSTAPKLARE EN ROYAAL UITGEBOUWDE GESCHAKELD VRIJSTAANDE WONING MET GARAGE EN 18 ZONNEPANELEN. FIJNE LIGGING AAN DOODLOPENDE STRAAT IN GEWILDE WOONOMGEVING "ENGELSE TUIN", NABIJ HET CENTRUM EN UITVALSWEGEN.

BEGANE GROND:
Overdekte entree, hal voorzien van tegelvloer met vloerverwarming, meterkast, inbouwkast met unit t.b.v. de vloerverwarming en trapopgang naar de 1e verdieping.

Luxe, geheel betegelde toiletruimte met hangend toilet en fonteintje.

Royale, uitgebouwde living, ± 46 m² (incl. keuken), voorzien van tegelvloer met vloerverwarming, airconditioning, stucwerk plafond met inbouwspots, een fraaie erker en praktische trapkast. De living is verdeeld in een zitgedeelte en open woon-/eetkeuken.

Luxe woon-/eetkeuken met aan weerszijden kastruimte, geïntegreerde eettafel en inbouwapparatuur, t.w.: inductiekookplaat, afzuigkap, vaatwasser, 2 koel-/vriescombinatie, 2 combi-ovens en een kokend water kraan.

Vanuit de keuken toegang tot de zeer ruime serre, ± 28 m². Deze is voorzien van een luxe in visgraat gelegde PVC-vloer met vloerverwarming, kastje met unit t.b.v. de vloerverwarming, sfeervolle gaskachel, lichtstraat, een schuifpui, en een pui over de volle breedte met harmonicadeuren welke volledig open kunnen. Deur naar de tuin. Door de serre kunt u optimaal genieten van alle jaargetijden.

Via de serre deur naar de garage, ± 18 m², voorzien van openslaande deuren, een gootsteen en elektra.

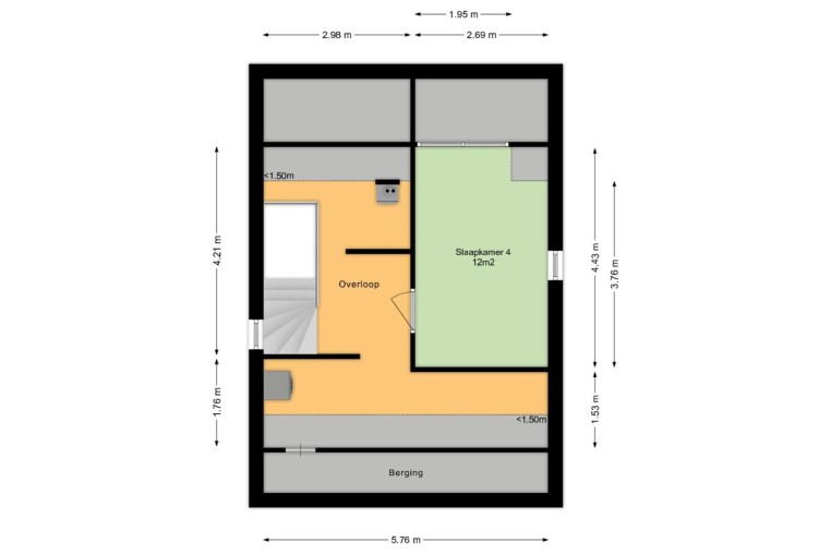
1E VERDIEPING:
Overloop met zeil.

Slaapkamer, ± 15 m², met zeil, inbouwkast en dubbele deur naar Frans balkon.
Slaapkamer, ± 10 m², met zeil.
Slaapkamer, ± 6 m², met zeil.

Luxe, geheel betegelde badkamer voorzien van elektrische vloerverwarming, hoekbad, douche, fraai breed badmeubel met wastafel, hangend toilet en designradiator.

2E VERDIEPING:
Ruime voorzolder voorzien van zeil, airconditioning, raam met ingebouwde hor, opstelling combi-ketel (Remeha Calenta Ace 40c ccs, 2023), mechanische afzuiging en omvormer t.b.v. de zonnepanelen.

Ruime 4e slaapkamer, ± 12 m², met zeil, dakkapel en zijraam met ingebouwde hor.

TUIN:
Keurig aangelegde voor-, zij en achtertuin, oprit geschikt voor meerdere auto's, carport en dubbele deur naar de garage.
De onderhoudsarme achtertuin is gelegen op het westen en aan de voorkant voorzien van een overkapping met poort.

BIJZONDERHEDEN:
* Goede isolatievoorzieningen, t.w.: spouwmuur, vloer- en dakisolatie, gehele woning voorzien van isolerende
beglazing.
* Royale uitgebouwde woning.
* De voorzijde van de woonkamer is voorzien van een erker.
* Luxe sanitaire voorzieningen en keukeninrichting.
* Woonoppervlakte: ± 163 m².
* Inhoud woning: ± 673 m³.
* Perceeloppervlakte: ± 294 m².
* Bouwjaar: 2008.
* Een gedeelte van de voortuin is eigendom van de Gemeente.
* Ideale ligging nabij de Strabrechtse Heide, scholen, winkelvoorzieningen, sportfaciliteiten en uitvalswegen
(ASML/High Tech Campus).
* Goede openbaar vervoer voorzieningen, o.a. een eigen treinstation.
* Heeze heeft een mooi centrum met winkels, terrassen en diverse restaurants.

VERRASSEND RUIME, KEURIG ONDERHOUDEN EN FRAAI GELEGEN WONING.
PLAN EEN BEZICHTIGING OM EEN JUISTE INDRUK TE KRIJGEN.

Overdracht

Status:Verkocht onder voorbehoud
Koopsom:€ 698.000,- Kosten koper

Bouwvorm

Soort object:Eengezinswoning
Soort woning:Geschakelde woning
Bouwjaar:2008
Bouwvorm:Bestaande bouw
Ligging:Aan rustige weg, In woonwijk

Indeling

Woonoppervlakte:163 m²
Inhoud:673 m³
Aantal kamers:5
Aantal slaapkamers:4

Energie

Warmwater:CV-ketel

Buitenruimte

Perceeloppervlakte:294 m²
Tuin:Achtertuin, Voortuin, Zijtuin
Hoofdtuin:Achtertuin
Oppervlakte hoofdtuin:50 m²
Ligging hoofdtuin:West
Achterom:Ja
Kwaliteit tuin:Fraai Aangelegd

Bergruimte

Parkeergelegenheid

Parkeergelegenheid:Inpandig

Dak

Soort dak:Zadeldak

Overig

Permanente bewoning:Ja
Onderhoud binnen:Goed
Onderhoud buiten:Goed
Huidig gebruik:Woonruimte
Huidige bestemming:Woonruimte

Voorzieningen

Mechanische ventilatie:Ja
Airconditioning:Ja
Zonnepanelen:Ja
Natuurlijke ventilatie:Ja

Foto's

Klik op de foto voor een vergroting.

Kaart

De locatie van de woning op de onderstaande kaart is bij benadering.

Reageer op deze woning

Type bezoeker: *
Aanhef: *
en : *
Soort bericht: *


Website door Whirlwind Internet
  • Funda
  • VastgoedCert
  • NWWI