Kranen Makelaardij

NVM

Parallelweg 57

5664 AG  Geldrop

€ 495.000,- Kosten koper
Soort object:Eengezinswoning
Type woning:Twee-onder-een-kapwoning
Bouwjaar:1924
Woonoppervlakte:105 m²
Aantal kamers:4
Beschikbaar

Korte omschrijving

Parallelweg 57 te Geldrop.

KARAKTERISTIEKE, VOOROORLOGSE JAREN 20 WONING (TYPE 2/1 KAP) MET RIANTE ACHTERTUIN VOORZIEN VAN RUIME GARAGE, BERGING, OVERKAPPING, VRIJ UITZICHT AAN VOORZIJDE EN OP LOOPAFSTAND VAN HET CENTRUM.

BEGANE GROND:
Entree; hal met vloerbedekking, meterkast, praktische ruime kelder en trapopgang met zijraam naar de 1e verdieping.

Deels betegelde toiletruimte met ...

Volledige omschrijving bekijken

Foto's


Kenmerken

Soort woning:Eengezinswoning
Perceeloppervlakte:566 m²
Bouwjaar:1924
Aantal kamers:4 kamers (3 slaapkamers)
Woonoppervlakte:105 m²
Inhoud:450 m³
Meer kenmerken bekijken

Volledige omschrijving

Parallelweg 57 te Geldrop.

KARAKTERISTIEKE, VOOROORLOGSE JAREN 20 WONING (TYPE 2/1 KAP) MET RIANTE ACHTERTUIN VOORZIEN VAN RUIME GARAGE, BERGING, OVERKAPPING, VRIJ UITZICHT AAN VOORZIJDE EN OP LOOPAFSTAND VAN HET CENTRUM.

BEGANE GROND:
Entree; hal met vloerbedekking, meterkast, praktische ruime kelder en trapopgang met zijraam naar de 1e verdieping.

Deels betegelde toiletruimte met toilet.

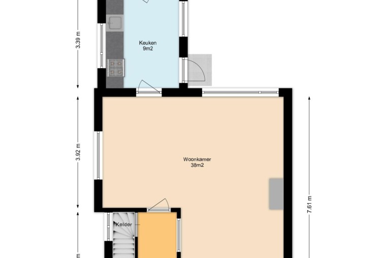
Sfeervolle, ruime woonkamer, ± 38 m², met vloerbedekking en houtkachel.

Dichte keuken, ± 9 m², met tapijttegels, diverse onder- en bovenkasten, 4-pits gaskookplaat, afzuigkap, koelkast en geiser. Tevens bevindt zich hier de deur naar de fijne achtertuin.

Vanuit de keuken is de badkamer bereikbaar welke is voorzien van een douche en vaste wastafel.

1E VERDIEPING:
Overloop met vloerbedekking en trapopgang naar de 2e verdieping.

Slaapkamer, ± 13 m², met vloerbedekking en inbouwkast.
Slaapkamer, ± 12 m², met vloerbedekking, inbouwkast, vaste wastafel en dakkapel.
Slaapkamer, ± 9 m², met vloerbedekking en deur naar plat dak.

Wasruimte met aansluiting wasapparatuur en berging onder de kapschuinte.

2E VERDIEPING:
Bereikbaar via vaste trap geheel begaanbare zolderruimte met opstelling c.v.-ketel (Radson) en dakraampje.

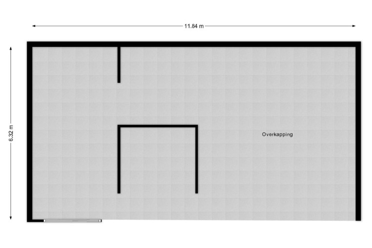
TUIN:
Nette voortuin met oprit en dubbele poort en deur naar de tuin.
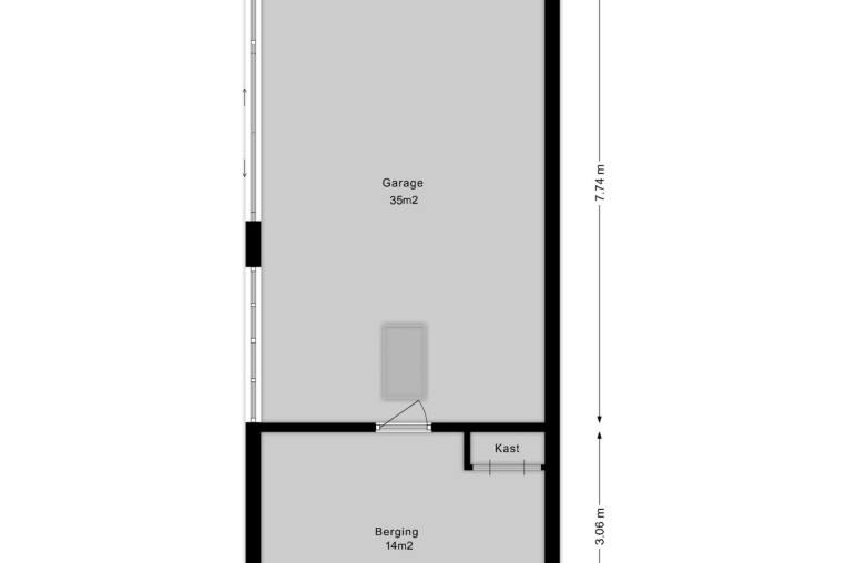
Riante, ± 32 m. diepe achtertuin met berging, royale garage en ruime overkapping achter in de tuin.

BIJZONDERHEDEN:
* Vrij gelegen aan de voorzijde.
* Op loopafstand van het centrum.
* Goede parkeergelegenheid.
* Royale garage: ± 35 m².
* Woonoppervlakte: ± 105 m².
* Inhoud: ± 450 m³.
* Perceeloppervlakte: ± 566 m².
* Bouwjaar: ± 1924.
* Energielabel: G.
* Koper dient rekening te houden met onderhouds- en moderniseringskosten.
* Gunstige ligging op loopafstand van het gezellige centrum met alle voorzieningen, Anna Ziekenhuis, NS-station,
uitvalswegen etc.

EEN WONING MET MOGELIJKHEDEN!

ALLEEN EEN BEZICHTIGING KAN U HIERVAN EEN JUISTE INDRUK GEVEN!!!

Overdracht

Status:Beschikbaar
Koopsom:€ 495.000,- Kosten koper

Bouwvorm

Soort object:Eengezinswoning
Soort woning:Twee-onder-een-kapwoning
Bouwjaar:1924
Bouwvorm:Bestaande bouw
Ligging:Aan rustige weg, In woonwijk

Indeling

Woonoppervlakte:105 m²
Inhoud:450 m³
Aantal kamers:4
Aantal slaapkamers:3

Energie

Warmwater:CV-ketel, Geiser eigendom

Buitenruimte

Perceeloppervlakte:566 m²
Tuin:Achtertuin
Hoofdtuin:Achtertuin
Oppervlakte hoofdtuin:384 m²
Ligging hoofdtuin:NoordOos
Achterom:Ja
Kwaliteit tuin:Normaal

Bergruimte

Schuur / Berging:Vrijstaand steen

Parkeergelegenheid

Parkeergelegenheid:Vrijstaand steen

Dak

Soort dak:Zadeldak

Overig

Permanente bewoning:Ja
Onderhoud binnen:Redelijk
Onderhoud buiten:Redelijk
Huidig gebruik:Woonruimte
Huidige bestemming:Woonruimte

Voorzieningen

Natuurlijke ventilatie:Ja

Foto's

Klik op de foto voor een vergroting.

Kaart

De locatie van de woning op de onderstaande kaart is bij benadering.

Reageer op deze woning

Type bezoeker: *
Aanhef: *
en : *
Soort bericht: *


Website door Whirlwind Internet
  • Funda
  • VastgoedCert
  • NWWI