Kranen Makelaardij

NVM

Laan van Tolkien 238

5663 SC  Geldrop

€ 489.000,- Kosten koper
Soort object:Appartement
Type woning:Portiekflat
Bouwjaar:2007
Woonoppervlakte:97 m²
Aantal kamers:3
Verkocht onder voorbehoud

Korte omschrijving

Laan van Tolkien 238 te Geldrop.

IN JONGE WOONOMGEVING GELEGEN VERRASSEND RUIM DRIEKAMERAPPARTEMENT GESITUEERD OP DE 2E VERDIEPING EN EEN EIGEN ROYALE GARAGE OP DE BEGANE GROND.

BEGANE GROND:
Royale, keurig verzorgde entree met brievenbussen, bellentableau en videofooninstallatie, toegang tot de gezamenlijke inpandige bergruimte.

2E VERDIEPING:
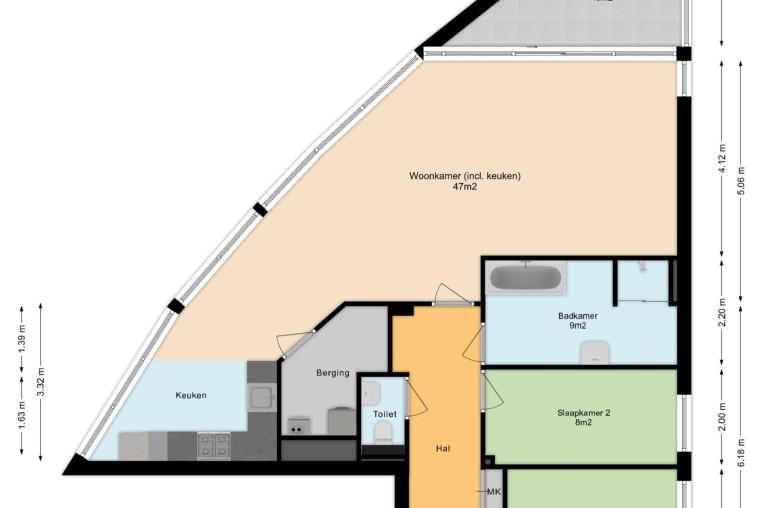
Ruime hal waar slechts 3 appartementen op ...

Volledige omschrijving bekijken

Foto's


Kenmerken

Soort woning:Appartement
Bouwjaar:2007
Aantal kamers:3 kamers (2 slaapkamers)
Woonoppervlakte:97 m²
Inhoud:326 m³
Meer kenmerken bekijken

Volledige omschrijving

Laan van Tolkien 238 te Geldrop.

IN JONGE WOONOMGEVING GELEGEN VERRASSEND RUIM DRIEKAMERAPPARTEMENT GESITUEERD OP DE 2E VERDIEPING EN EEN EIGEN ROYALE GARAGE OP DE BEGANE GROND.

BEGANE GROND:
Royale, keurig verzorgde entree met brievenbussen, bellentableau en videofooninstallatie, toegang tot de gezamenlijke inpandige bergruimte.

2E VERDIEPING:
Ruime hal waar slechts 3 appartementen op uitkomen.

Woning:
Ruime hal met laminaatvloer.

Nette, tot plafond betegelde toiletruimte met wandcloset en fonteintje.

Royale woonkamer, ± 47 m² (incl. keuken) met laminaatvloer, veel lichtinval door de vele raampartijen en toegang d.m.v. een schuifpui naar het balkon, ± 9 m².

Open keuken in hoekopstelling met diverse onder- en bovenkasten en inbouwapparatuur, t.w.: gaskookplaat, afzuigkap, combi-oven/magnetron, koelkast en vaatwasser.

Inpandige berging met opstelling c.v.-ketel (Intergas, ± 2006) en aansluitingen wasapparatuur.

Ruime slaapkamer, ± 14 m², met laminaat vloer.
slaapkamer, ± 8 m², met laminaat vloer.

Nette, royale tot plafond betegelde badkamer met ligbad, separate douche en vaste wastafel.

GARAGE:
Op de begane grond gelegen eigen garage voorzien van elektrische roldeur en bergvliering.

BIJZONDERHEDEN:
* Optimale isolatievoorzieningen.
* Bouwjaar: ± 2007.
* Woonoppervlakte: ± 97 m².
* Inhoud: ± 326 m³.
* Servicekosten bedragen thans € 198,00 per maand (incl. o.a. opstalverzekering, schoonmaak openbare ruimten,
liftonderhoud, openbare verlichting en reservering t.b.v. toekomstig gezamenlijk onderhoud).
* Zeer veel openbare parkeergelegenheid voor bezoekers.
* Op de begane grond bevindt zich een Albert Heijn.
* Ligging nabij natuur- en wandelgebied.
* Eindhoven op fietsafstand.
* In de koopakte wordt een niet-zelfbewoningsclausule opgenomen.

ROYAAL DRIEKAMERAPPARTEMENT IN KLEINSCHALIG APPARTEMENTENCOMPLEX.

Overdracht

Status:Verkocht onder voorbehoud
Koopsom:€ 489.000,- Kosten koper

Bouwvorm

Soort object:Appartement
Soort appartement:Portiekflat
Bouwjaar:2007
Bouwvorm:Bestaande bouw
Ligging:In woonwijk

Indeling

Woonoppervlakte:97 m²
Inhoud:326 m³
Aantal kamers:3
Aantal slaapkamers:2
Aantal woonlagen:1

Energie

Warmwater:CV-ketel

Buitenruimte

Tuin:Geen tuin
Oppervlakte hoofdtuin:
Achterom:Nee

Bergruimte

Schuur / Berging:Inpandig

Parkeergelegenheid

Parkeergelegenheid:Garagebox

Dak

Overig

Permanente bewoning:Ja
Onderhoud binnen:Redelijk_tot Goed
Onderhoud buiten:Redelijk_tot Goed
Huidig gebruik:Woonruimte
Huidige bestemming:Woonruimte

Voorzieningen

Mechanische ventilatie:Ja
Buitenzonwering:Ja
Glasvezelkabel:Ja
Natuurlijke ventilatie:Ja

Foto's

Klik op de foto voor een vergroting.

Kaart

De locatie van de woning op de onderstaande kaart is bij benadering.

Reageer op deze woning

Type bezoeker: *
Aanhef: *
en : *
Soort bericht: *


Website door Whirlwind Internet
  • Funda
  • VastgoedCert
  • NWWI