Kranen Makelaardij

NVM

Koninginnestraat 115

5663 PW  Geldrop

€ 545.000,- Kosten koper
Soort object:Eengezinswoning
Type woning:Hoekwoning
Bouwjaar:1995
Woonoppervlakte:139 m²
Aantal kamers:4
Beschikbaar

Korte omschrijving

Koninginnestraat 115 te Geldrop.

UITGEBOUWDE EN ONDER MODERNE ARCHITECTUUR GEBOUWDE, GOED ONDERHOUDEN HOEKWONING MET RUIME BIJKEUKEN, BERGING, EXTRA BUITENBERGING EN VRIJ GELEGEN LEUK AANGELEGDE ACHTERTUIN OP HET ZUIDEN, IN KINDVRIENDELIJKE EN JONGE WOONOMGEVING “ZESGEHUCHTEN”.

BEGANE GROND:
Overdekte entree; hal met tegelvloer, garderobehoek en meterkast.

Portaal met laminaatvloer en ...

Volledige omschrijving bekijken

Foto's


Kenmerken

Soort woning:Eengezinswoning
Perceeloppervlakte:236 m²
Bouwjaar:1995
Aantal kamers:4 kamers (3 slaapkamers)
Woonoppervlakte:139 m²
Inhoud:488 m³
Meer kenmerken bekijken

Volledige omschrijving

Koninginnestraat 115 te Geldrop.

UITGEBOUWDE EN ONDER MODERNE ARCHITECTUUR GEBOUWDE, GOED ONDERHOUDEN HOEKWONING MET RUIME BIJKEUKEN, BERGING, EXTRA BUITENBERGING EN VRIJ GELEGEN LEUK AANGELEGDE ACHTERTUIN OP HET ZUIDEN, IN KINDVRIENDELIJKE EN JONGE WOONOMGEVING “ZESGEHUCHTEN”.

BEGANE GROND:
Overdekte entree; hal met tegelvloer, garderobehoek en meterkast.

Portaal met laminaatvloer en trapopgang naar 1e verdieping.

Moderne, geheel betegelde toiletruimte met hangend toilet en toiletkastje met fonteintje.

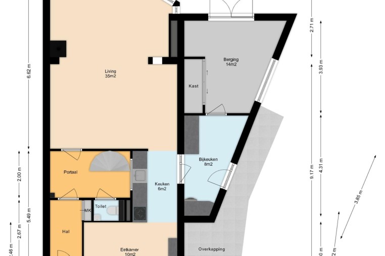
Ruime living, verdeeld in een uitgebouwde zitkamer aan de achterzijde, een eetkamer aan de voorzijde met in het midden de keuken.

Royale, uitgebouwde zitkamer, ± 35 m², voorzien van laminaatvloer, sfeervolle gaskachel, stucwerk wanden en -plafond en deur naar fijne tuin op zonzijde. Veel lichtinval door de grote raampartij.

Eetkamer, ± 10 m², met laminaatvloer en verlengd keukendeel met keukenblad.

Moderne, semi-open keuken, ± 6 m², voorzien van moderne inrichting met diverse kasten en inbouwapparatuur, t.w.: inductiekookplaat, afzuigkap en koelkast.

Vanuit de keuken toegang tot de praktische bijkeuken. Deze is voorzien van een tegelvloer, een keukenblok, aansluitingen wasapparatuur, vaatwasser en vriezer.

Toegang tot de ruime verwarmde berging, ± 14 m², met tegelvloer, ruime kast en openslaande deuren naar de tuin.

1E VERDIEPING:
Ruime overloop met laminaatvloer, lichtkoepel en praktische schuifdeurenkast met opstelling combi-ketel (Nefit Trendline, ± 2019).

Slaapkamer, ± 19 m², met laminaatvloer, airconditioning, kastenwand en rolluiken.
Slaapkamer, ± 11 m², met laminaatvloer.
Slaapkamer, ± 7 m², met laminaatvloer.

Geheel betegelde badkamer, ± 4 m², voorzien van inloopdouche, badmeubel met wastafel, hangend toilet en designradiator.

TUIN:
Modern aangelegde, onderhoudsarme voortuin.
De fraaie achtertuin is eveneens modern en onderhoudsarm aangelegd en gesitueerd op de zonzijde.
Tevens bevindt zich hier de berging voorzien van elektra en poort naar achterom.
De achtertuin is vrij gelegen en biedt veel privacy.

BIJZONDERHEDEN:
* Goede isolatievoorzieningen, t.w.: vloer-. spouwmuur- en dakisolatie en isolerende beglazing HR++.
* Royale begane grond.
* De woning beschikt over 3 ruime slaapkamers.
* De binnendeuren op de begane grond en voordeur zijn in 2023 vernieuwd.
* Dak is in 2023 vernieuwd.
* In 2023 is tevens een praktische overkapping/berging aan de zijkant van de woning geplaatst en is de schutting vernieuwd.
* Bouwjaar: ± 1995.
* Woonoppervlakte: ± 139 m².
* Perceeloppervlakte: ± 236 m².
* Inhoud woning: ± 488 m³.
* Goede parkeergelegenheid.
* Uitstekende locatie nabij sportaccommodaties, scholen, centrum, NS-station, Anna ziekenhuis en uitvalswegen.
* Op fietsafstand van Eindhoven.

VERRASSEND RUIME, ONDER MODERNE ARCHITECTUUR GEBOUWDE, GOED ONDERHOUDEN HOEKWONING GELEGEN IN RUSTIGE EN KINDVRIENDELIJKE WOONOMGEVING “ZESGEHUCHTEN”!

Overdracht

Status:Beschikbaar
Koopsom:€ 545.000,- Kosten koper

Bouwvorm

Soort object:Eengezinswoning
Soort woning:Hoekwoning
Bouwjaar:1995
Bouwvorm:Bestaande bouw
Ligging:Aan rustige weg, In woonwijk

Indeling

Woonoppervlakte:139 m²
Inhoud:488 m³
Aantal kamers:4
Aantal slaapkamers:3

Energie

Warmwater:CV-ketel

Buitenruimte

Perceeloppervlakte:236 m²
Tuin:Achtertuin, Voortuin
Hoofdtuin:Achtertuin
Oppervlakte hoofdtuin:84 m²
Ligging hoofdtuin:Zuid
Achterom:Ja
Kwaliteit tuin:Fraai Aangelegd

Bergruimte

Schuur / Berging:Aangebouwd steen

Parkeergelegenheid

Parkeergelegenheid:Geen garage

Dak

Soort dak:Plat dak

Overig

Permanente bewoning:Ja
Onderhoud binnen:Goed
Onderhoud buiten:Goed
Huidig gebruik:Woonruimte
Huidige bestemming:Woonruimte

Voorzieningen

Mechanische ventilatie:Ja
Rolluiken:Ja
Buitenzonwering:Ja
Airconditioning:Ja
Glasvezelkabel:Ja
Natuurlijke ventilatie:Ja

Foto's

Klik op de foto voor een vergroting.

Kaart

De locatie van de woning op de onderstaande kaart is bij benadering.

Reageer op deze woning

Type bezoeker: *
Aanhef: *
en : *
Soort bericht: *


Website door Whirlwind Internet
  • Funda
  • VastgoedCert
  • NWWI