Kranen Makelaardij

NVM

Kastanjehof 314

5664 RR  Geldrop

€ 450.000,- Kosten koper
Soort object:Appartement
Type woning:Portiekflat
Bouwjaar:2009
Woonoppervlakte:98 m²
Aantal kamers:3
Verkocht onder voorbehoud

Korte omschrijving

Kastanjehof 314 te Geldrop.

FRAAI GELEGEN, GOED ONDERHOUDEN DRIEKAMERAPPARTEMENT OP DE ZESDE VERDIEPING VAN EEN KEURIG APPARTEMENTENCOMPLEX MET PRACHTIG UITZICHT OP HET DOMMELDAL.

BEGANE GROND:
Fraaie en ruime gezamenlijke entree, hal met brievenbussen, bellentableau, videofooninstallatie en toegang tot lift.

2E VERDIEPING:
Hier bevindt zich een ruime privé berging, ± 3 m², alsmede een ...

Volledige omschrijving bekijken

Foto's


Kenmerken

Soort woning:Appartement
Bouwjaar:2009
Aantal kamers:3 kamers (2 slaapkamers)
Woonoppervlakte:98 m²
Inhoud:301 m³
Meer kenmerken bekijken

Volledige omschrijving

Kastanjehof 314 te Geldrop.

FRAAI GELEGEN, GOED ONDERHOUDEN DRIEKAMERAPPARTEMENT OP DE ZESDE VERDIEPING VAN EEN KEURIG APPARTEMENTENCOMPLEX MET PRACHTIG UITZICHT OP HET DOMMELDAL.

BEGANE GROND:
Fraaie en ruime gezamenlijke entree, hal met brievenbussen, bellentableau, videofooninstallatie en toegang tot lift.

2E VERDIEPING:
Hier bevindt zich een ruime privé berging, ± 3 m², alsmede een mogelijkheid om een elektrische fiets op te laden. Deze verdieping is per lift en trap gemakkelijk bereikbaar. Tevens is er een gezamenlijke fietsenstalling in de kelder aanwezig.

6E VERDIEPING:
Via een fraaie gang is de entree van de woning bereikbaar.

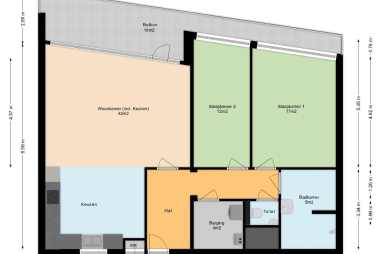
Ruime hal met Novilon vloer en garderobehoek.
Inpandige berging, ± 4 m², met opstelling combiketel (Nefit, ± 2009), warmte terugwin installatie (WTW) en aansluitingen wasapparatuur.

Ruime, sfeervolle woonkamer, ± 42 m² inclusief keuken, met prettig veel lichtinval door grote raampartij, voorzien van Novilon vloer en deur naar royaal balkon, ± 18 m². Het balkon is op het Oosten gelegen en biedt een prachtig uitzicht over het Dommeldal.

Moderne open keuken in hoekopstelling voorzien van diverse onder- en bovenkasten en inbouwapparatuur, t.w.: inductie kookplaat, afzuigkap, combimagnetron, koelkast en vriezer.

Ruime slaapkamer, ± 17 m², voorzien van Novilon vloer.
Slaapkamer, ± 12 m², voorzien van Novilon vloer.

Luxe en royale, geheel betegelde badkamer, ± 8 m², voorzien van ruime inloopdouche, badmeubel met vaste wastafel, spiegelkast, fraaie kastenwand en designradiator.

Moderne, deels betegelde toiletruimte met wandcloset en fonteintje.

BIJZONDERHEDEN:
* Uitstekende isolatievoorzieningen.
* Goede sanitaire voorzieningen.
* Het appartement is aangesloten op een alarmeringscentrale.
* Fraai uitzicht vanaf het balkon.
* Energielabel A+.
* Woonoppervlakte: ± 98 m².
* Inhoud appartement: ± 301 m³.
* Bouwjaar: ± 2009.
* Uitstekende parkeergelegenheid aan de voorzijde van het appartementencomplex.
* De servicekosten bedragen thans € 266,33 per maand.
* Openbaar vervoer en gratis parkeergelegenheid voor de deur.
* Bestemd voor bewoning door 55–plussers.

ZEER CENTRALE LIGGING NABIJ CENTRUM EN UITVALSWEGEN!!

De appartementen zijn gebouwd volgens het unieke Wooninc. Plusconcept met diverse voorzieningen en services. Dit maakt het wonen in Kastanjehof uniek. De bewoners kunnen zelf aangeven van welke voorzieningen men gebruik wil maken, zoals:

Service Wooninc. Plus Kastanjehof:
* Ontmoetingsruimte (Grand Café) voor (buurt)bewoners met buitenterras.
* Maaltijdservice.
* Persoonlijke alarmering/welzijnscontrole.
* Eigen beheerder.
* Kapsalon, pedicure, wasserette.
* Logeerkamers: (klein-)kinderen kunnen blijven overnachten.
* Bibliotheek en t.v.-hoek.
* Video- en toegangscontrolesysteem.
* Zorg op maat.
* Afwisselend activiteitenprogramma.

Overdracht

Status:Verkocht onder voorbehoud
Koopsom:€ 450.000,- Kosten koper

Bouwvorm

Soort object:Appartement
Soort appartement:Portiekflat
Bouwjaar:2009
Bouwvorm:Bestaande bouw
Ligging:In woonwijk, Vrij uitzicht

Indeling

Woonoppervlakte:98 m²
Inhoud:301 m³
Aantal kamers:3
Aantal slaapkamers:2
Aantal woonlagen:1

Energie

Warmwater:CV-ketel

Buitenruimte

Tuin:Geen tuin
Oppervlakte hoofdtuin:
Achterom:Nee

Bergruimte

Schuur / Berging:Inpandig

Parkeergelegenheid

Parkeergelegenheid:Geen garage

Dak

Overig

Permanente bewoning:Ja
Onderhoud binnen:Goed
Onderhoud buiten:Goed
Huidig gebruik:Woonruimte
Huidige bestemming:Woonruimte

Voorzieningen

Mechanische ventilatie:Ja
Lift:Ja
Natuurlijke ventilatie:Ja

Foto's

Klik op de foto voor een vergroting.

Kaart

De locatie van de woning op de onderstaande kaart is bij benadering.

Reageer op deze woning

Type bezoeker: *
Aanhef: *
en : *
Soort bericht: *


Website door Whirlwind Internet
  • Funda
  • VastgoedCert
  • NWWI