Kranen Makelaardij

NVM

Donjon 48

5664 PD  Geldrop

€ 475.000,- Kosten koper
Soort object:Appartement
Type woning:Galerijflat
Bouwjaar:2010
Woonoppervlakte:99 m²
Aantal kamers:3
Verkocht onder voorbehoud

Korte omschrijving

Donjon 48 te Geldrop.

LET OP: OPEN HUIS IS GEANNULEERD AANGEZIEN HET APPARTEMENT VERKOCHT IS.



LUXE AFGEWERKT 3-KAMER APPARTEMENT OP 1E VERDIEPING MET RUIM BALKON, BERGING, SEPARATE FIETSENSTALLING EN EIGEN PARKEERPLAATS IN AFGESLOTEN PARKEERGARAGE.

BEGANE GROND:
Keurige en ruime entree met bellentableau, videofooninstallatie en toegang tot lift en trappenhuis.

1E VERDIEPING:
Entree, ruime ...

Volledige omschrijving bekijken

Foto's


Kenmerken

Soort woning:Appartement
Bouwjaar:2010
Aantal kamers:3 kamers (2 slaapkamers)
Woonoppervlakte:99 m²
Inhoud:325 m³
Meer kenmerken bekijken

Volledige omschrijving

Donjon 48 te Geldrop.

LET OP: OPEN HUIS IS GEANNULEERD AANGEZIEN HET APPARTEMENT VERKOCHT IS.



LUXE AFGEWERKT 3-KAMER APPARTEMENT OP 1E VERDIEPING MET RUIM BALKON, BERGING, SEPARATE FIETSENSTALLING EN EIGEN PARKEERPLAATS IN AFGESLOTEN PARKEERGARAGE.

BEGANE GROND:
Keurige en ruime entree met bellentableau, videofooninstallatie en toegang tot lift en trappenhuis.

1E VERDIEPING:
Entree, ruime hal met PVC vloer, garderobenis met inbouwkasten en meterkast met automatische groepen.

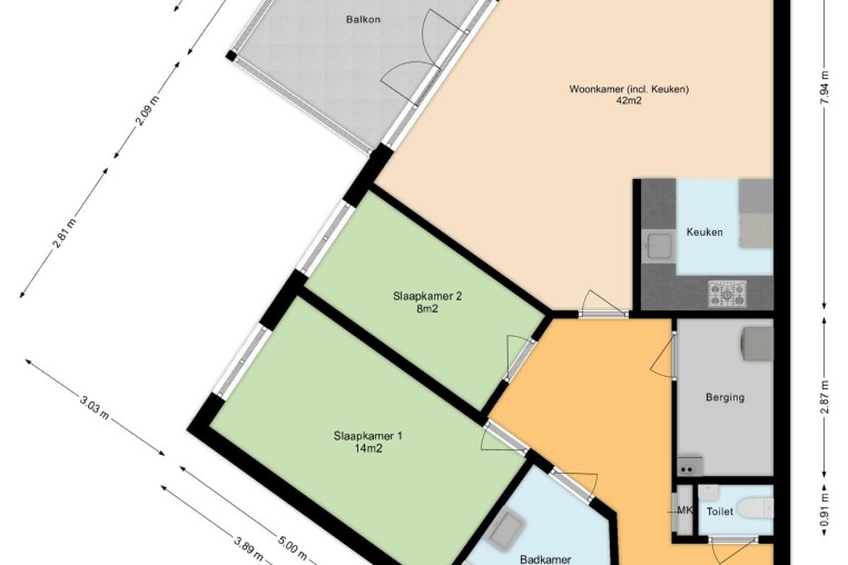
Moderne, deels betegelde toiletruimte met wandcloset en fonteintje.

Berging annex wasruimte met aansluitingen ten behoeve van wasapparatuur, combiketel (Intergas, 2010) en warmte terugwininstallatie.

Zeer ruime, tot plafond betegelde badkamer voorzien van ligbad, separate inloopdouche en fraai badmeubel met brede wastafel.

Ruime slaapkamer, ± 14 m², voorzien van PVC vloer en tv-aansluiting.
Slaapkamer, ± 8 m², voorzien van PVC vloer.

Sfeervolle ruime woonkamer (± 42 m² incl. keuken) voorzien van PVC vloer en dubbele deur naar royaal balkon met houten vlonders. Het balkon is af te sluiten met een glazen schuifwand. Optimaal genieten van alle jaargetijden.

Moderne open keuken voorzien van PVC vloer. Luxe inrichting in hoekopstelling, voorzien van diverse onder- en bovenkasten en inbouwapparatuur t.w.: 5-pits gaskookplaat, afzuigkap, combi-magnetron (2025), koelkast en vaatwasser (2023).

SOUTERRAIN:
Ruime parkeergarage met eigen parkeerplaats en eigen berging.

BIJZONDERHEDEN:
* Uitstekende isolatievoorzieningen.
* Het appartement is voorzien van een fraaie PVC-vloer.
* Luxe keukeninrichting en badkamer.
* Woonoppervlakte: ± 99 m².
* Inhoud appartement: ± 325 m³.
* Bouwjaar appartement: ± 2010.
* Eigen parkeerplaats in afgesloten garage.
* Gezonde en actieve Vereniging van Eigenaren.
* Servicekosten woning: € 189,97 per maand, parkeerplaats: € 19,14 per maand.
* Ruim opgezet complex voorzien van een royale binnentuin en een fraaie gracht rondom.
* Levensloopbestendig.
* Ligging in het centrum van Geldrop met alle voorzieningen binnen handbereik, zoals winkels, cultureel centrum,
gezellig horecaplein, bibliotheek, Anna ziekenhuis, NS-station, kasteeltuinen etc.

ALTIJD AL GELIJKVLOERS EN INSTAPKLAAR WILLEN WONEN NABIJ ECHT ALLE VOORZIENINGEN? DIT IS DE KANS!! MAAK EEN AFSPRAAK VOOR EEN BEZICHTIGING OM EEN JUISTE INDRUK TE KRIJGEN.

Overdracht

Status:Verkocht onder voorbehoud
Koopsom:€ 475.000,- Kosten koper

Bouwvorm

Soort object:Appartement
Soort appartement:Galerijflat
Bouwjaar:2010
Bouwvorm:Bestaande bouw
Ligging:Aan water, Aan rustige weg, In centrum, In woonwijk

Indeling

Woonoppervlakte:99 m²
Inhoud:325 m³
Aantal kamers:3
Aantal slaapkamers:2
Aantal woonlagen:1

Energie

Warmwater:CV-ketel

Buitenruimte

Tuin:Geen tuin
Oppervlakte hoofdtuin:
Achterom:Nee

Bergruimte

Schuur / Berging:Inpandig

Parkeergelegenheid

Parkeergelegenheid:Parkeerkelder, Parkeerplaats

Dak

Overig

Permanente bewoning:Ja
Onderhoud binnen:Goed_tot Uitstekend
Onderhoud buiten:Goed_tot Uitstekend
Huidig gebruik:Woonruimte
Huidige bestemming:Woonruimte

Voorzieningen

Mechanische ventilatie:Ja
Lift:Ja

Foto's

Klik op de foto voor een vergroting.

Kaart

De locatie van de woning op de onderstaande kaart is bij benadering.

Reageer op deze woning

Type bezoeker: *
Aanhef: *
en : *
Soort bericht: *


Website door Whirlwind Internet
  • Funda
  • VastgoedCert
  • NWWI