Kranen Makelaardij

NVM

Dokter Ruttenpark 13

6029 TK  Sterksel

€ 530.000,- Kosten koper
Soort object:Eengezinswoning
Type woning:Twee-onder-een-kapwoning
Bouwjaar:2019
Woonoppervlakte:126 m²
Aantal kamers:5
Beschikbaar

Korte omschrijving

Dokter Ruttenpark 13 te Sterksel.

JONGE, INSTAPKLARE TWEE-ONDER-EEN-KAPWONING MET BERGING EN DIEPE VEEL PRIVACY BIEDENDE TUIN EN ROYALE GROENVOORZIENING AAN DE VOORZIJDE. GELEGEN IN ZEER GEWILDE, RUIM OPGEZETTE, BOSRIJKE EN KINDVRIENDELIJKE WOONOMGEVING "KLOOSTERVELDEN'.

BEGANE GROND:
Entree, hal met tegelvloer en vloerverwarming, uitgebreide meterkast met automatische groepen.

Moderne, tot ...

Volledige omschrijving bekijken

Foto's


Kenmerken

Soort woning:Eengezinswoning
Perceeloppervlakte:276 m²
Bouwjaar:2019
Aantal kamers:5 kamers (4 slaapkamers)
Woonoppervlakte:126 m²
Inhoud:467 m³
Meer kenmerken bekijken

Volledige omschrijving

Dokter Ruttenpark 13 te Sterksel.

JONGE, INSTAPKLARE TWEE-ONDER-EEN-KAPWONING MET BERGING EN DIEPE VEEL PRIVACY BIEDENDE TUIN EN ROYALE GROENVOORZIENING AAN DE VOORZIJDE. GELEGEN IN ZEER GEWILDE, RUIM OPGEZETTE, BOSRIJKE EN KINDVRIENDELIJKE WOONOMGEVING "KLOOSTERVELDEN'.

BEGANE GROND:
Entree, hal met tegelvloer en vloerverwarming, uitgebreide meterkast met automatische groepen.

Moderne, tot plafond betegeld toiletruimte met hangend toilet en fonteintje.

Sfeervolle woonkamer, ± 44 m² (incl. keuken) met veel lichtinval, voorzien van tegelvloer met vloerverwarming, glad gestucte wanden, ruime bergkast met tegelvloer en unit t.b.v. vloerverwarming. Tuindeur naar de diepe achtertuin.

Open keuken met moderne inrichting, diverse onder- en bovenkasten en inbouwapparatuur, t.w.: kookplaat, afzuigkap, vaatwasser, combi-oven en koelkast. De keuken is voorzien van een tegelvloer met vloerverwarming. Fraai vrij uitzicht.

1E VERDIEPING:
Ruime overloop met klik-PVC.

Slaapkamer, ± 15 m², met klik-PVC en draai-/kiepramen.
Slaapkamer, ± 13 m², met klik-PVC en draai-/kiepramen.
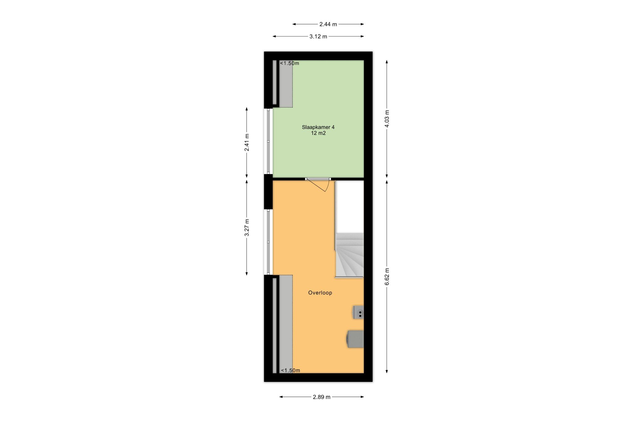
Slaapkamer, ± 8 m², met klik-PVC en hoog draai-/kiepraam.

Moderne, tot plafond betegelde badkamer met inloopdouche, hangend toilet, vaste wastafel en designradiator.

2E VERDIEPING:
Bereikbaar middels vaste trap, royale voorzolder met klik-PVC, grote dakkapel, omvormer t.b.v. zonnepanelen, combi-ketel (Intergas HRE, ± 2019) unit t.b.v. mechanische ventilatie, aansluiting wasmachine en afvoer droger.

Extra slaapkamer, ± 12 m², met klik-PVC en dakkapel.

TUIN:
Leuk aangelegde voortuin met oprit geschikt voor 2 auto's.
De achtertuin is middels een poort aan de zijkant bereikbaar. Deze ruime achtertuin biedt veel privacy, beschikt over 2 terrassen en een berging achter in de tuin.

BIJZONDERHEDEN:
* Goede isolatievoorzieningen, t.w.: spouwmuur-, dak- en vloerisolatie, HR++-beglazing.
* De woning beschikt over 7 zonnepanelen.
* 4 Slaapkamers.
* Ruime oprit geschikt voor 2 auto's.
* De gehele begane grond is voorzien van vloerverwarming.
* Energielabel: A.
* Woonoppervlakte: ± 126 m².
* Inhoud: ± 467 m³.
* Perceeloppervlakte: ± 276 m².
* Bouwjaar: ± 2019.
* Rustige ligging met uitzicht op veel groen.
* Nabij gelegen bossen en velden.
* Op steenworp afstand gelegen van kinderopvang, speeltuin, brasserie en bushalte.

HET BETREFT HIER EEN UNIEKE JONGE WOONWIJK MET DE LIGGING OP EEN UITGESTREKT TERREIN VAN EEN VOORMALIG KLOOSTER ("PROVIDENTIA"). ER IS HIERDOOR EEN COMBINATIE VAN HISTORISCHE CHARME EN MODERNE FACILITEITEN.

CENTRALE LIGGING MET ZOWEL EINDHOVEN, WEERT EN HELMOND BINNEN 20 AUTOMINUTEN TE BEREIKEN.

Overdracht

Status:Beschikbaar
Koopsom:€ 530.000,- Kosten koper

Bouwvorm

Soort object:Eengezinswoning
Soort woning:Twee-onder-een-kapwoning
Bouwjaar:2019
Bouwvorm:Bestaande bouw
Ligging:In woonwijk

Indeling

Woonoppervlakte:126 m²
Inhoud:467 m³
Aantal kamers:5
Aantal slaapkamers:4

Energie

Warmwater:CV-ketel

Buitenruimte

Perceeloppervlakte:276 m²
Tuin:Achtertuin, Voortuin, Zijtuin
Hoofdtuin:Achtertuin
Oppervlakte hoofdtuin:117 m²
Ligging hoofdtuin:NoordOos
Achterom:Ja
Kwaliteit tuin:Fraai Aangelegd

Bergruimte

Schuur / Berging:Vrijstaand hout

Parkeergelegenheid

Parkeergelegenheid:Geen garage

Dak

Soort dak:MANSARDE_DAK

Overig

Permanente bewoning:Ja
Onderhoud binnen:Goed
Onderhoud buiten:Goed
Huidig gebruik:Woonruimte
Huidige bestemming:Woonruimte

Voorzieningen

Mechanische ventilatie:Ja
Glasvezelkabel:Ja
Zonnepanelen:Ja
Natuurlijke ventilatie:Ja

Foto's

Klik op de foto voor een vergroting.

Kaart

De locatie van de woning op de onderstaande kaart is bij benadering.

Reageer op deze woning

Type bezoeker: *
Aanhef: *
en : *
Soort bericht: *


Website door Whirlwind Internet
  • Funda
  • VastgoedCert
  • NWWI